Café Enez
Douarnenez (29)
Café Enez
Douarnenez (29)
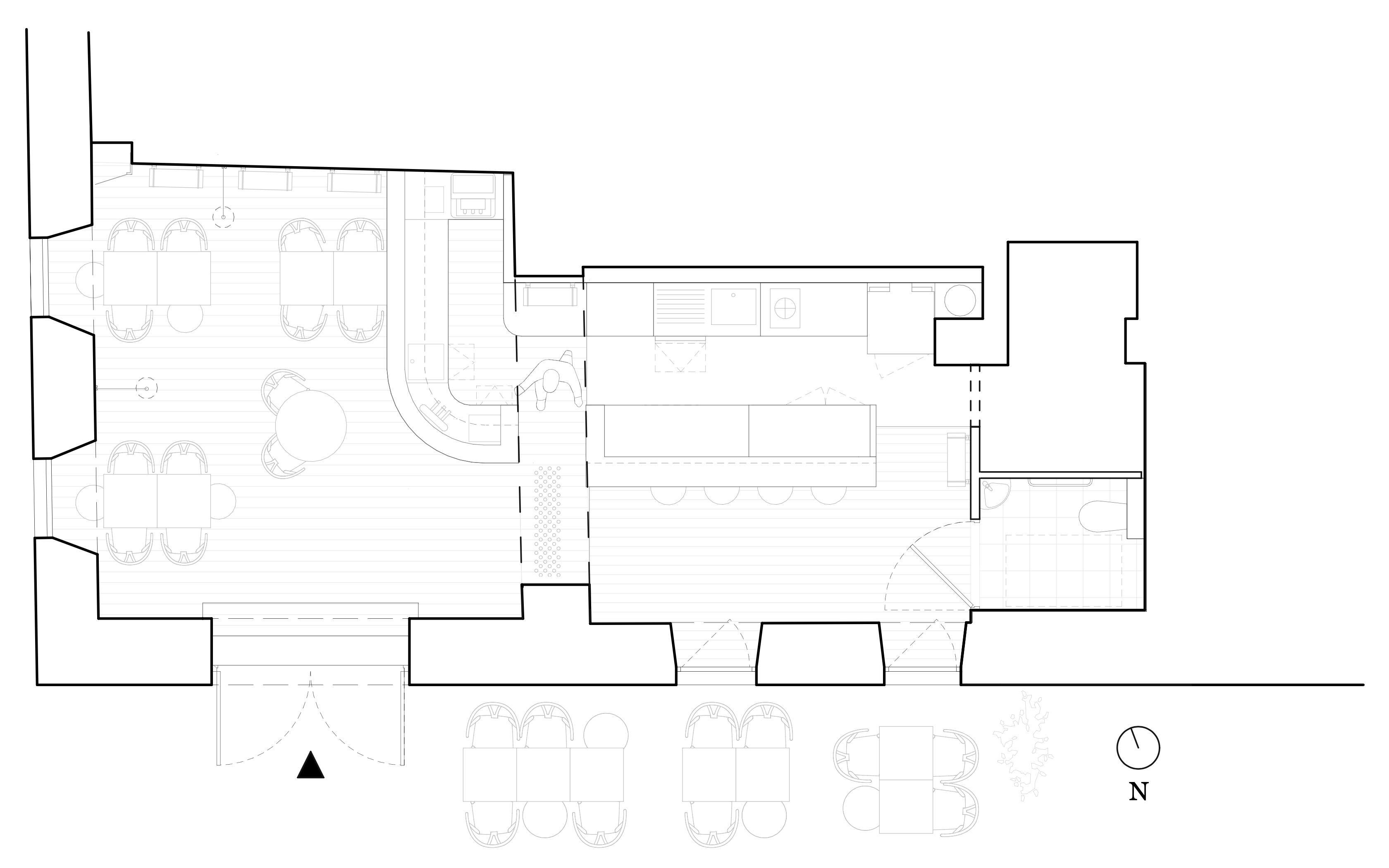
Le projet consiste en la restructuration d’un ancien bar pour le transformer en un café-restaurant.
Dans une démarche d’économie de moyens, le projet détourne l’utilisation des structures métalliques servant conventionnellement au doublage, à savoir les rails, les montants, les fourrures, les cavaliers et les tiges filetées. Ces dispositifs, traditionnellement masqués par des plaques de plâtres, sont ici révélés, mettant ainsi en valeur la matière usinée brute : l’acier galvanisé. Ils structurent plusieurs éléments du projet : façade du bar, range-verres et étagères. Ces dernières, disposées de part et d’autre du restaurant, sont modulables grâce au système de cavaliers sur fourrures.
Un plancher technique en bois local, revêtu de parquet en châtaignier déclassé, a été posé afin de répondre aux normes d’accessibilité des établissements recevant du public (ERP).
L’écrin « neutre » des lieux, façonné par l’usage de matériaux bruts, offre à la cheffe la liberté d’aménager l’espace avec du mobilier réemployé, créant ainsi une atmosphère rassurante et un véritable refuge.
Mahaut Le Lagadec, aux côtés de Grenue Architecture, a mené ce projet dans une démarche engagée en sélectionnant des entreprises ancrées à Douarnenez. Le chantier s’est également distingué par la forte implication de femmes dans sa réalisation. Ainsi, Sarah Malher (Harlem Menuiserie) a mené les aménagements en bois, tandis qu’Anne Evrard (FBE) a supervisé la partie CVC, CFO, CFA.
Café Enez
Douarnenez (29)
Le projet consiste en la restructuration d’un ancien bar pour le transformer en un café-restaurant.
Dans une démarche d’économie de moyens, le projet détourne l’utilisation des structures métalliques servant conventionnellement au doublage, à savoir les rails, les montants, les fourrures, les cavaliers et les tiges filetées. Ces dispositifs, traditionnellement masqués par des plaques de plâtres, sont ici révélés, mettant ainsi en valeur la matière usinée brute : l’acier galvanisé. Ils structurent plusieurs éléments du projet : façade du bar, range-verres et étagères. Ces dernières, disposées de part et d’autre du restaurant, sont modulables grâce au système de cavaliers sur fourrures.



Un plancher technique en bois local, revêtu de parquet en châtaignier déclassé, a été posé afin de répondre aux normes d’accessibilité des établissements recevant du public (ERP).
L’écrin « neutre » des lieux, façonné par l’usage de matériaux bruts, offre à la cheffe la liberté d’aménager l’espace avec du mobilier réemployé, créant ainsi une atmosphère rassurante et un véritable refuge.
Mahaut Le Lagadec, aux côtés de Grenue Architecture, a mené ce projet dans une démarche engagée en sélectionnant des entreprises ancrées à Douarnenez. Le chantier s’est également distingué par la forte implication de femmes dans sa réalisation. Ainsi, Sarah Malher (Harlem Menuiserie) a mené les aménagements en bois, tandis qu’Anne Evrard (FBE) a supervisé la partie CVC, CFO, CFA.













