Pôle Enfance Jeunesse
Pont-Saint-Martin (44)
Pôle Enfance Jeunesse
Pont-Saint-Martin (44)
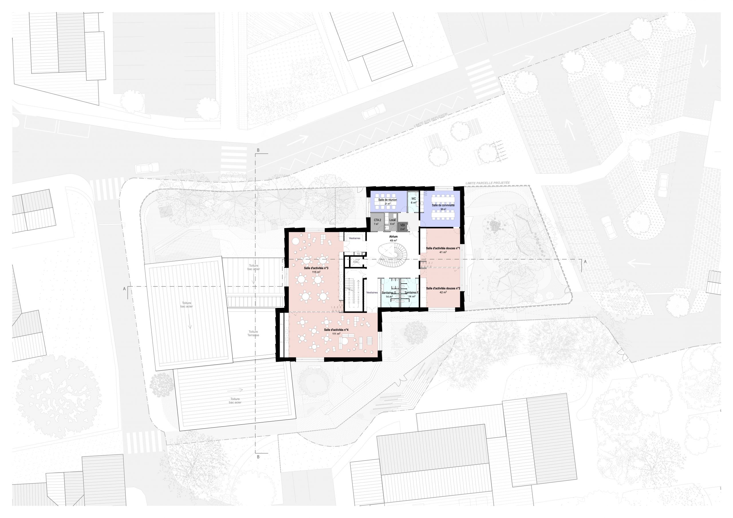
Le bâtiment se compose de cinq entités distinctes, facilement identifiables, chacune entretenant une relation particulière avec l’environnement qui l’entoure. Ce morcellement permet de préserver et de mettre en valeur les masses végétales existantes tout en créant de nouveaux espaces paysagers.
Les façades sont habillées d’une maçonnerie en briques, conférant aux blocs une robustesse monolithique adaptée au site exposé. Ces briques, d’une teinte claire rappelant la pierre calcaire locale, sont mises en œuvre pour former des plissures verticales. Elles se déploient selon une trame régulière sur l’ensemble des façades, s’enroulant autour des différents volumes et renforçant l’unité de l’ensemble. La perception des façades évolue de manière sculpturale au fil de la journée, l’ombre variant subtilement selon les modénatures et l’orientation de la lumière.
Tandis que l’extérieur se caractérise par des matériaux d’aspect minéral, solides et inspirant la pérennité de l’ouvrage, l’intérieur est défini par la proportion des espaces, l’entrée de lumière naturelle dans les volumes et le caractère chaleureux du bois.
Pôle Enfance Jeunesse (44)
Le bâtiment se compose de cinq entités distinctes, facilement identifiables, chacune entretenant une relation particulière avec l’environnement qui l’entoure. Ce morcellement permet de préserver et de mettre en valeur les masses végétales existantes tout en créant de nouveaux espaces paysagers.
Les façades sont habillées d’une maçonnerie en briques, conférant aux blocs une robustesse monolithique adaptée au site exposé. Ces briques, d’une teinte claire rappelant la pierre calcaire locale, sont mises en œuvre pour former des plissures verticales. Elles se déploient selon une trame régulière sur l’ensemble des façades, s’enroulant autour des différents volumes et renforçant l’unité de l’ensemble. La perception des façades évolue de manière sculpturale au fil de la journée, l’ombre variant subtilement selon les modénatures et l’orientation de la lumière.







